Ce document présente une utilisation de la formule de contrainte d’égalité pour la cotation par exemple des girons et hauteurs de marche d’escalier. Le même principe exposé ici pourrait s’appliquer à un grand nombre d’ouvrages.
Configuration de l’outil de cotation dans Revit
La configuration de l’outil de cote s’opère depuis le ruban Revit, selon deux approches possibles :
1 . Via l’onglet Modifier → groupe de fonction Mesurer → bouton cote (puis bouton Alignée si nécessaire).
2 . Via l’onglet Annoter → groupe Cote → bouton Alignée.
Création d’un style de cote dans Revit
La première étape pour personnaliser l’affichage des cotations consiste à créer un style de cote adapté.
Depuis la palette des propriétés de l’outil Cote, cliquez sur Modifier le type. Une nouvelle fenêtre s’ouvre : elle présente l’ensemble des paramètres du style de cote, organisés en plusieurs zones distinctes.
1 . Graphismes
Cette section regroupe tous les paramètres qui influencent l’aspect visuel et la disposition de la cote sur le dessin :
- Style et épaisseur des lignes,
- Présentation des repères de cote (traits, flèches, points),
- Décalage des cotes par rapport aux éléments mesurés,
- Gestion des chaînes de cotes.
2 . Texte
Ici sont définis les paramètres relatifs à l’apparence du texte affiché dans les cotes :
- Choix de la police de caractères,
- Mise en forme (gras, italique, facteur de largeur),
- Taille du texte,
- Position et alignement du texte par rapport à la ligne de cote.
3 . Unités principales
Cette zone permet de spécifier les unités utilisées pour la cotation. En règle générale, elles reprennent les unités définies au niveau du projet (mètre, centimètre, millimètre, etc.), mais elles peuvent être personnalisées au besoin.
4 . Unités alternatives
Dans certains cas, il est pertinent d’afficher deux systèmes d’unités simultanément. Cette option permet d’ajouter une cotation alternative en parallèle de la cotation principale.
Exemple : afficher des valeurs en système métrique (m) et en système impérial (pieds/pouces) pour un projet international.
5 . Autre
Cette dernière catégorie regroupe des options plus spécifiques en lien avec les cotations linéaires (ou angulaires), :
- la gestion des contraintes d’égalité entre cotes,
- les options liées à l’espacement automatique des repères.
C’est dans cette section des propriétés de type que nous nous attarderons, afin de détailler les différentes options disponibles et de présenter les réglages permettant un affichage de cotation à la fois simplifié et cohérent, notamment pour les ouvrages répétitifs présentant des dimensions identiques.
Les contraintes d’égalité
Le paramètre Texte d’égalité détermine le texte affiché pour les cotes soumises à une contrainte d’égalité.
Le remplacement de la valeur par défaut EQ par un texte personnalisé se répercute sur le type de cote auquel il est appliqué.
Ce paramètre n’a cependant aucune incidence sur les objets du document : il indique visuellement les lignes de cote sur lesquelles une formule d’égalité peut être appliquée.
La formule d’égalité
Par défaut, la formule d’égalité est définie sur Longueur totale.
Cela signifie que lorsqu’elle est appliquée à une ligne de cote soumise à une contrainte d’égalité, une cote unique représentant la longueur totale de la ligne de cote remplace l’ensemble des segments de de cotes individuelles contenant le symbole d’égalité EQ.
Les croquis ci-dessous illustrent les principales étapes de mise en œuvre de la formule d’égalité :
1 . Cotation de l’ouvrage
2 . Application de la contrainte d’égalité à la ligne de cote sélectionnée
3 . Choix du type d’affichage de la ligne de cote via le paramètre d’occurrence Affichage égalisé
4 . Résultat du choix « Formule d’égalité »
La formule d’égalité peut être personnalisée pour refléter un usage spécifique. Nous verrons dans un prochain exemple, comment mettre en œuvre une formule destinée à coter les girons d’un escalier.
Pour commencer, accédons à la fenêtre Formule de contrainte d’égalité en cliquant sur le bouton associé au paramètre Formule d’égalité. L’objectif est de construire une formule cohérente à partir des paramètres disponibles dans la section Paramètres de cote.
Elle pourrait prendre la forme suivante :
Longueur du segment × Nombre de segments = Longueur totale
Dans la fenêtre Formule de contrainte d’égalité, cette équation se traduit par l’organisation suivante :
les paramètres de cote Longueur du segment et Nombre de segments sont placés dans la zone Paramètres libellé, puis ordonnés de manière à reproduire la formule ci-dessus.
Le résultat obtenu est le suivant (fig. 10) :
Même si les valeurs sont correctes (1.00 × 7 = 7.00), la lecture de la ligne de cote demeure peu lisible.
Nous pouvons néanmoins améliorer la présentation en ajoutant des préfixes textuels représentant les opérateurs (ces éléments sont des caractères, et non des opérateurs mathématiques).
La lecture peut être encore simplifiée en sélectionnant la valeur Masquer pour le paramètre Affichage des attaches d’égalité (fig. 13).
En conséquence, les lignes d’attache sont supprimées, offrant un affichage plus clair et épuré (fig. 14).
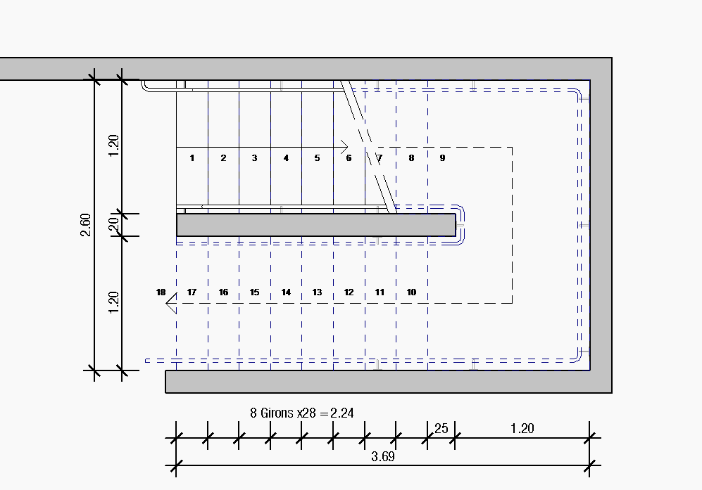
Exemple : cotation des girons
Dans cet exemple, nous allons configurer les paramètres de manière à obtenir la formule suivante :
nombre de segments girons x Longueur du segment = Longueur totale
De nombreuses combinaisons sont possibles pour atteindre l’affichage souhaité. Outre la configuration proposée (fig. 15) — où le texte « girons » est ajouté en suffixe du paramètre Nombre de segments — il est également possible de placer le texte “ girons × ” soit en suffixe de Nombre de segments, soit en préfixe du paramètre Longueur du segment.
Autre exemple

